Na wynajem lokal usługowy z dużą, przeszkloną witryną, doskonały pod działalność gastronomiczną lub na usługi medycyny estetycznej. Nieruchomość zlokalizowana jest w nowoczesnym kompleksie Yacht Park w samym sercu Gdyni Śródmieścia - jednej z najbardziej prestiżowych inwestycji w nadmorskim krajobrazie.
To wyjątkowe miejsce łączy luksus z funkcjonalnością, oferując panoramiczne widoki na marinę, jachty i morze. Architektura budynków została zaprojektowana tak, aby harmonijnie wpisywać się w otoczenie, a jednocześnie zapewniać komfort zarówno mieszkańcom, jak i przedsiębiorcom.
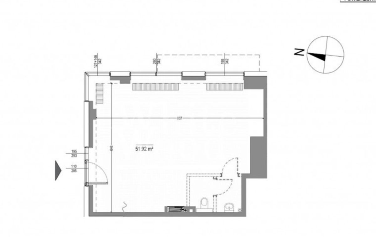
Lokal o powierzchni 52 m² jest w stanie deweloperskim, co pozwala na dowolną aranżację zgodnie z potrzebami przyszłego najemcy.
Warunki najmu:
- Minimalny okres umowy: 12 miesięcy
- Kaucja: 8000zł
- Czynsz: 6000 zł netto/miesiąc + 23% VAT
- Opłaty eksploatacyjne
Możliwość uzyskania bonifikaty w najmie na poczet adaptacji lokalu.
Powyższe informacje mają charakter informacyjny i nie stanowią oferty handlowej w rozumieniu przepisów prawa. Dane o nieruchomości pochodzą z deklaracji właściciela.
Yacht Park Gdynia lokal użytkowy 52m2
lokalizacja: Gdynia, Arkadiusza Rybickiego
6 000,00 PLN
115,38 PLN
Dane szczegółowe
- Typ transakcji: wynajem
- Typ nieruchomości: Komercyjny
- Lokalizacja: Gdynia Śródmieście, Arkadiusza Rybickiego
- Powierzchnia:52 m2
- Liczba pokoi: 2
- Rok budowy: 2021
- Piętro: 0 z 3
- Numer oferty: 226061
- Cena: 6 000,00 PLN
- Cena za m2: 115,38 PLN
Opis nieruchomości
Kontakt do opiekuna:
Property Scout Krzysztof Kieszek